 |
 |
 |
 |
 Realizace |
|
     |
|
Knihovna fakulty dopravní ČVUT v Praze 2
 Nové využití dvou úrovní původní kotelny v uvolněném suterénu řeší potřebu fakultní knihovny, studovny a menzy.
 |
Knihovna fakulty dopravní ČVUT v Praze |
|

Patrik Stašek
|
Zpráva
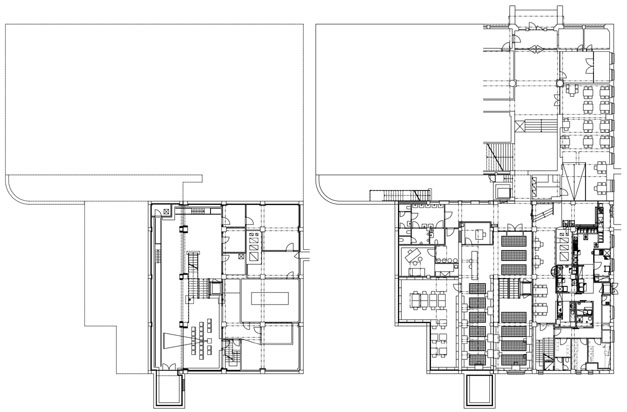
Budova fakulty dopravní ČVUT v Praze ve vysokoškolském areálu pod Albertovem pochází z druhé poloviny padesátých let minulého století a je dílem architekta Aloise Houby. Rozsáhlý prostor kotelny s kapacitními zásobníky na koks v podzemí stavby nebyl využíván od zřízení plynové kotelny na malé části původní plochy. Nové využití dvou úrovní uvolněného suterénu řeší potřebu fakultní knihovny, studovny a menzy.
Řešení se navenek projevuje jen úpravou původně hospodářského dvora, kudy byla kotelna zásobována koksem a pod kterým je značná část rekonstruovaných prostorů situována. Poklopy do násypných zásobníků na koks jsou zde nahrazeny střešními světlíky v ploše, která je parkově upravena pro relaxaci studentů či pedagogů.
Část haly, jako největšího z prostorů knihovny, je ponechána ve své plné dimenzi původní kotelny o světlé výšce 6m. Od vstupu je přehledná shora. Vzniklou dvoranou je vedeno schodiště a hydraulická plošina. Snaha o pokračování průniku denního světla shora do nově rekonstruovaných prostorů vedla i k užití skleněných tvárnic ve stropě, který je do části haly nově vložen na místě původních, při rekonstrukci vybouraných zásobníků paliva. Studovna, napojená na halu, je též přirozeně osvětlena střešními světlíky.
Knihovna je vybavena regály v celkové délce asi 900 m. Čtenářská místa ve studovně i v hale jsou vybavena jako počítačová pracoviště.
Původní fakultní bufet je odstraněn. Nový bufet je ve vizuálním kontaktu s halou knihovny. Program zahrnuje i menší menzu – jídelnu s výdejem cca 180 dovážených jídel denně při třísměnném provozu.
 |
Interier – 1.P.P. |
|

25.04.2006, Lukáš Žentel |
 |
Interier – hlavní hala, Exterier - schodiště |
|

10.10.2006, Patrik Stašek |
 |
Exterier – prosvětlení, schodiště |
|

10.10.2006, Patrik Stašek |
 |
Schema – suterén, přízemí |
|

01.05.2005, Patrik Stašek |
 |
Schema – axonometrie, venkovní úpravy, řez |
|

01.05.2005, Patrik Stašek |
 |
Původní stav |
|

28.02.2005, Patrik Stašek |
|